Zahnkupplungen TNZ ZCAF/Zahnkupplungen TNZ ZCAF / TNZ ZCBF | RINGFEDER®| RINGFEDER®

Zwischenwelle und starre Gegenflansche

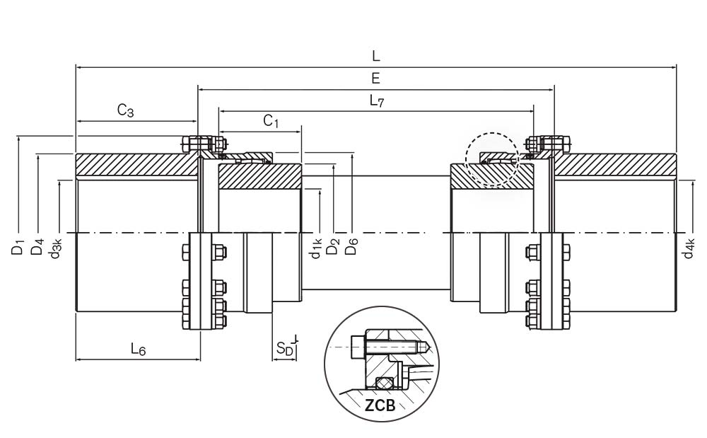
Die Bauart RINGFEDER® TNZ ZCAF wird aus den Kupplungshälften der TNZ ZCA aufgebaut, die mit einer Zwischenwelle und zwei starren Gegenflanschen ergänzt wird. Bei Bedarf wird die Torsionssteifigkeit der Welle zur dynamischen Abstimmung eines Antriebstranges eingestellt. Zudem dient die Zwischenwelle der Überbrückung großer Wellenabstände, kann radial montiert und demontiert werden, ohne dass die angeschlossenen Aggregate verschoben werden müssen.

Die Bauart RINGFEDER® TNZ ZCBF wird aus den Kupplungshälften der TNZ ZCB aufgebaut, die mit einer Zwischenwelle und zwei starren Gegenflansche ergänzt wird. Bei Bedarf wird die Torsionssteifigkeit der Welle zur dynamischen Abstimmung eines Antriebstranges eingestellt. Zudem dient die Zwischenwelle der Überbrückung großer Wellenabstände, kann zudem radial montiert und demontiert werden, ohne dass die angeschlossenen Aggregate verschoben werden müssen. Geschraubten Deckel auf Welle ablegen, Nabe auf Welle montieren, Gehäuse auf Nabe schieben, O-Ring-Träger an Gehäuse befestigen, was bei großen Kupplungen sinnvoll ist. Wie die Bauart ZCAU hat die ZCBU eine verlängerte Nabe, deren Länge bei Bedarf an den anlagenspezifischen Vorgaben angepasst wird.

 

Technische Daten & CAD-Modelle

Sie benötigen CAD-Daten für diese TNZ-Ausführung? Selbstverständlich stellen wir Ihnen diese gerne zur Verfügung. Kontaktieren Sie uns schnell und einfach über unser Kontaktformular, per E-Mail oder mittels der "Benötigen Sie Hilfe?"-Funktion unten rechts auf dieser Seite.

CAD
Größe
Bezeichnung
ZCA

TKN
Nm
nmax
1/min
d3kmin
mm
d3kmax
mm
D1
mm
D6
mm
L
mm
L7min
mm
Gwsb
kg
69 XC6106 1750 Auf Anfrage / On request 12 55 111 81,5 179 86 Abhängig von / depends on E
85 XC6108 2750 Auf Anfrage / On request 18 75 152 103,5 213 100 Abhängig von / depends on E
107 XC6110 5500 Auf Anfrage / On request 28 95 178 127,5 271 124 Abhängig von / depends on E
133 XC6113 8500 Auf Anfrage / On request 40 110 213 156 325 152 Abhängig von / depends on E
152 XC6115 13500 Auf Anfrage / On request 50 130 240 181 403 180 Abhängig von / depends on E
179 XC6117 22000 Auf Anfrage / On request 60 155 280 209 466 210 Abhängig von / depends on E
209 XC6120 35000 Auf Anfrage / On request 70 180 318 245,5 530 240 Abhängig von / depends on E
234 XC6123 43000 Auf Anfrage / On request 85 200 346 274 602 270 Abhängig von / depends on E
254 XC6125 68000 Auf Anfrage / On request 95 230 389 307 700 300 Abhängig von / depends on E
279 XC6127 82000 Auf Anfrage / On request 110 250 425 334,5 806 350 Abhängig von / depends on E
305 XC6130 150000 Auf Anfrage / On request 120 280 457 366 880 380 Abhängig von / depends on E
355 XC6135 195000 Auf Anfrage / On request 130 330 527 423 1040 440 Abhängig von / depends on E
CAD Größe
Bezeichnung
ZCA

TKN
ft-lbs
nmax
rpm
d3kmin
inch
d3kmax
inch
D1
inch
D6
inch
L
inch
L7min
inch
Gwsb
lbs
  69 XC6106 1291 Auf Anfrage / On request 0.472 2.165 4.370 3.209 7.047 3.386 Abhängig von / depends on E
  85 XC6108 2028 Auf Anfrage / On request 0.709 2.953 5.984 4.075 8.386 3.937 0Abhängig von / depends on E
  107 XC6110 4057 Auf Anfrage / On request 1.102 3.740 7.008 5.020 10.669 4.882 0Abhängig von / depends on E
  133 XC6113 6269 Auf Anfrage / On request 1.575 4.331 8.386 6.142 12.795 5.984 0Abhängig von / depends on E
  152 XC6115 9957 Auf Anfrage / On request 1.969 5.118 9.449 7.126 15.866 7.087 0Abhängig von / depends on E
  179 XC6117 16227 Auf Anfrage / On request 2.362 6.102 11.024 8.228 18.346 8.268 0Abhängig von / depends on E
  209 XC6120 25815 Auf Anfrage / On request 2.756 7.087 12.520 9.665 20.866 9.449 0Abhängig von / depends on E
  234 XC6123 31716 Auf Anfrage / On request 3.346 7.874 13.622 10.787 23.701 10.630 0Abhängig von / depends on E
  254 XC6125 50155 Auf Anfrage / On request 3.740 9.055 15.315 12.087 27.559 11.811 0Abhängig von / depends on E
  279 XC6127 60481 Auf Anfrage / On request 4.331 9.843 16.732 13.169 31.732 13.780 0Abhängig von / depends on E
  305 XC6130 110636 Auf Anfrage / On request 4.724 11.024 17.992 14.409 34.646 14.961 0Abhängig von / depends on E
  355 XC6135 143826 Auf Anfrage / On request 5.118 12.992 20.748 16.654 40.945 17.323 0Abhängig von / depends on E

Produkteigenschaften

Eigenschaften allgemein

  • Drehstarre, aus hochwertigem Schmiedestahl gefertigte Zahnkupplung
  • Gleicht winkligen, radialen und axialen Wellenversatz aus
  • Mit Spezialdichtungen bis +120 °C einsetzbar
  • Lieferbar in geteiltem (ZCA / ZCB - ZCA Baureihe jeweils auch in ZCB Ausführung) und einteiligem (ZCH) Gehäuse
  • Bohrungen bis 270 mm
  • Drehmomente bis TKn = 195000 Nm / TKmax = 390000 Nm
  • Drehzahlen bis nmax = 6000 min-1

Allgemeine Beschreibung

Die RINGFEDER® TNZ ist eine drehstarre, doppelkardanische Zahnkupplung.

Verzahnung

Die Kupplungsgehäuse haben eine gerade Innenverzahnung, während die Naben eine mit veränderlichem Radius bombierte Außenverzahnung tragen. Dadurch können sich die Naben räumlich in den Gehäusen bewegen und axiale, winklige und radiale Verlagerungen der gekuppelten Wellen innerhalb festgelegter Grenzen ausgleichen. Die Serienverzahnung lässt je nach Kupplungsbauart bis zu 0,5° Winkelverlagerung pro Verzahnungsebene und mehrere Millimeter Axialbewegung zu. Der maximal mögliche radiale Wellenversatz hängt vom Abstand der beiden Verzahnungsebenen ab. Für spezielle Anwendungsfälle können andere Verzahnungsgeometrien eingesetzt werden.

Werkstoffe

Hochwertige Zahnflanken und Fett mit Höchstdruckzusätzen garantieren niedrige Rückstellkräfte und eine lange Lebensdauer. Als Werkstoff wird Schmiedestahl mit einer Streckgrenze von mindestens 335 N/mm2 verwendet. Für spezielle Anwendungsfälle können Sonderwerkstoffe eingesetzt werden. Die Abdichtung erfolgt durch O-Ringe aus synthetischem Gummi. Die Gehäuse werden durch Passschrauben und selbstsichernde Ganzstahlmuttern zentriert und zusammengehalten.

Temperatur

Bei Einsatz von Spezialdichtungen kann eine Maximaltemperatur von 120 °C zugelassen werden.

Wuchten

Bei Umfangsgeschwindigkeiten ab 30 m/s empfiehlt sich dynamisches Auswuchten.

Sonderfälle

Wenn bei zu hoher Drehzahl und hohem Drehmoment große Verlagerungen zu erwarten sind, bedarf es einer Überprüfung mit einem speziellen Rechenprogramm. Dies ist unabhängig von der Größenbestimmung. Der Wert TKmax darf in keinem Betriebszustand (Anfahren, elektrischer Kurzschluss, Blockieren, usw.) überschritten werden.

Toleranzen und Standards

Wenn nicht anders bestellt, beträgt die Bohrungstoleranz ISO H7. Die angegebenen Bohrungsdurchmesser beziehen sich auf Passfedernuten nach DIN 6885-1 mit einer Breitentoleranz ISO P9.

Downloads

Product Paper Zahnkupplungen RINGFEDER® TNZ

Product Paper Zahnkupplungen RINGFEDER® TNZ

Tech Paper Zahnkupplungen RINGFEDER® TNZ ZCAF / TNZ ZCBF

Tech Paper Zahnkupplungen RINGFEDER® TNZ ZCAF / TNZ ZCBF

Weitere Downloads einschließlich Zertifikate, Betriebsanleitungen und Produktbilder stehen Ihnen in unserem Download Center zur Verfügung:

Downloads